|
<RorO>
|
|
an automated barrelorgan robot
dr.Godfried-Willem
RAES
2007-2021
|
A mobile automated barrelorgan robot using in part recycled pipework and components
by Gerard Pels (1955-2014). Revoicing and re-intonation performed by us.
Description of the organ registers:
Register names: Roerpijp 8' , (6 octaves), Salicional 4', Blockfloete 8'. Some
pipes are marked as 'Nazaard'.
The pipes sounding the notes 36 to 50 are made of zinc, from note 51 on, they
are Sn/Pb in the traditional organ pipe alloy. All pipes for notes 37 to 47
are closed, from 48 on they are half-closed. The lowest octave pipes also have
roll beards for intonation and tuning. These are made from regular pipe alloy.
Here is a picture of some of these zinc made pipes: 
Here is a view on the pipes for notes 48,49,50 :
These pipes are 'roergedeckt'. The pipes for the 'blockflute' part of the register
(notes 84 to 93) are shaped anticonical:
Higher up, in fact a second register, the pipes are open and cilindrical. Salicional
pipes as we presume. The presence of this gamut of pipes, led us to implement
some interesting registrations: 8", 4", 2" and sesquialter choices
become possible. The registers can be selected using the midi program change
command.
Since the instrument is designed for transportation, the pipes are inserted
somewhat deeper into the upperplate of the windchest than usual in traditional
organ building. Also on some pipe-ranks we provided in a silicon compound closing
joint.
The wind to the pipes from note 48 on, is turned on and off with vertical solenoid
valves. Experiments revealed that -although far from spectacular- it was worth
the effort to implement velocity sensitivity on these valves. The circuit to
achieve this is a mere repetition of what we did for many more of our musical
robots:
The
circuit for a complete board, serving 14 solenoids/ notes looks like this:
The
soldered board with components: 
A view on the inside of the windchest for the notes 48 - 115: Left side:
Center part:
Left
side: 
Circuit Overview:
- Hold velo boards: see <HarmO> ,
<pos> etc...
- Midi hub board : see bottom of page
- Tremulant motor controller board (implemented on the hub board)
Mapping

Midi implementation:
The midi channel for <RorO> is 3 (0-15) or 4 (1-16).
Midi note range: 36 - 115, velocity implemented (steers the speed wherewith
the valves do open and hence, at least to some extend, the note attack).
The recommended value for the velocity byte is 64. Only when note repeats using
key-pressure are used, it makes sense to play around with the velo settings.
For very fast note repetitions (Flatterzunge effect), the velocity values may
need to be taken smaller.
Note Off commands are obviously required. The release byte has no function
and is not implemented on this robot.
Lights:
lights are mapped on midi notes as follows:
- note 120: white LED strip on the low windchest (velo = flashing speed)
- note 121: white LED strip on the high windchest (velo = flashing speed)
- note 122: red LED small strip nect to the midi-hub board (velo = flashing
speed)
- note 123: red LED strip on he low windchest (velo = flashing speed)
- note 124: red LED assembly on the polycarbonate carrier plate with the note
PCB's. (on/off only)
Controllers:
- Controller 7 is used for the wind pressure (motor speed). The normal setting
should be 43. Default startup value in the PIC firmware is 0. It cannot be
used for fast wind pressure modulation but is perfectly suitable for slow
crescendo and decrescendo. Note however that the pitch as well as the intonation
may be affected when the robot organ is operated on nonstandard wind-pressures.
On very low pressures, edge and whistle tones may be produced.
- Controller 11 controls the speed of the tremulant.eWith
value 0, it is switched off.
- Controller 66 is used to switch the robot on or off. On switch off, all
controllers are reset to their cold-boot settings. Program change (used for
registration) is reset as well.
- Controller 69 steers automation of the lights on the robot. Possible values
for this controller are 0 (lights off) and 1 to 7. Value 1 uses the red led
strip on the low windchest only. Value 2 uses the white LED strip on the low
windchest. Value 3 uses both the white strip on the high windchest and the
red LED's on the hub board. Value 4 is the same as value 3, but alternates
the lights. Values 5,6,7 map all the lights according to the number of notes
the robot is playing. The more notes, the more lights.
- Controller 123: The robot responds to the midi all-notes-off command. This
command also switches off the lights and the tremulant, but not the motor.
To switch off the motor controller 66 should be used.
Program change is implemented to select different pipe sets and combinations.
- bit 0 in the program change byte switches the low register (notes 36-47)
on or off.
- bit 1 switches the roerpijp register (notes 48 - 93) on or off.
- bit 2 switches the salicional register (notes 76 to 115) on or off as 8"
register
- bit 3 switches the salicional register on or off as 4" register. So,
it will respond to the notes 64 to 103 and sound an octave higher.
- bit 4 switches the salicional register on or off as a sesquialter, sounding
the duodecime. So it will respond to the notes 57 to 96 and sound a duodecime
higher.
- bit 5 switches the salicional register on or off as 2" register. So
it will respond to the notes 52 to 91 and sound two octaves higher.
Note that the bits 2,3,4,5 are mutually exclusive. For users that
are less familiar with binary coding, here is a practical summary of usefull
settings:
| Patch |
|
|
| 0 |
|
all registers off |
| 1 |
pedal only, 8' |
only notes 36-47 will play |
| 2 |
roerpijp register only ('nazaard' marked
pipes), 8' |
only notes 48-93 will play - implemented
for tuning |
| 3 |
8' register |
only notes 36-93 will play |
| 4 |
salicional register only, as 8' register |
only notes 76-115 will play - implemented for tuning the pipes |
| 7 |
all pipes as 8' register |
all notes 36-115 will play |
| 11 |
8' + salicional as 4' register |
all notes 36-103 will play |
| 19 |
8' + salicional as duodecime register |
all notes 36-96 will play |
| 35 |
8' + salicional as 2' register |
all notes 36-91 will play |
Technical specifications:
- size: 1200 x 500 x 2080 (in mm)
- weight: 143 kg
- power: 230V ac
- Tuning: based on A = 440 Hz at 21 degrees Celsius
- static windpressure in the windchest for normal tuning and intonation: 80
mmH2O or 8 mbar
- Sound pressure level: to be measured
- Ambitus: 36 - 115
- Insurance value: 16.000 Euro.
Design and constructon: dr.Godfried-Willem
Raes (2007-2021)
Collaborators on the construction of this robot:
- Mattias Parent
- Yvan Vander Sanden
- Johannes Taelman
- Kristof Lauwers
- Bert Vandekerckhove
Music composed or orchestrated for this robot:
- Johann Sebastian Bach, Toccata en Fuga in D, BWV565
- Ludwig Van Beethoven 'Musik fuer eine FloetenUhr', adapted to <RorO>
by Lara Van Wynsberghe.
- Alain Van Zeveren 'Roro Tango' , A tango
for Roro. 2021 [mp3 recording] (2021) Midi file beschikbaar
hier.
- Alain Van Zeveren, 'Roro Reve' (2021)
- Alain Van Zeveren, 'Prelude' (2021)
- Godfried-Willem Raes 'O Roro Ro' (in the making)
- Godfried-Willem Raes 'Rolands Round', (1985), arranged for the RorO robot
by Alain Van Zeveren.
- Godfried-Willem Raes 'Plumblossoms'
- Karel Waeri / Walter De Buck 'Het Vliegerke'
(bewerkt door Alain Van Zeveren) [mp3 recording] Midi file beschikbaar
hier.
- Karel Miry, 'De Vlaamse Leeuw' (bewerkt
voor <Roro) [mp3 recording] Midi file
beschikbaar hier. (1845)
- Pierre De Geyter, 'Internationale' (1888)
- Kristof Lauwers, 'Roll on Roll off' (2021)
- Johan De Stoop 'Klokke Roeland' (1877)
Nederlands:
<RorO>
De uitgangspunten bij het ontwerp, de planning en de bouw van
deze muzikale robot waren bij aanvang drieerlei:
1.- Heel regelmatig bereikt ons de vraag naar muziekautomaten die kunnen worden
ingezet op openbare plaatsen, straten en pleinen. Omwille van de gebruikte materialen
en ontwerptechnische beperkingen was dit met de grote meerderheid van de robots
reeds beschikbaar bij Stichting Logos praktisch onmogelijk. Vandaar de aanvankelijke
overweging van het bouwen van een 'draaiorgel'-achtig instrument dat geschikt
zou zijn voor bedrijf in openlucht: op straat dus. Anders gesteld, voor het
ontwerp vereist dit een zekere mate van regenbestendigheid, een eigenschap die
in geen van de muzikale robotten die we bij Stichting Logos ontwikkelden in
voldoende mate aanwezig is. Deze vereiste dikteert het gebruik van kunststoffen
en metalen eerder dan de traditionele materialen uit de orgelbouw, met name
hout en leder. Ook voor de elektronika vergt dit uitgangspunt enkele bijzondere
maatregelen. Voor de pijpen kunnen we uitgaan van een register gebouwd door
Gerard Pels (1955-2014) voor een klein kistorgel en waarvoor zink werd gebruikt.
Pels heeft het orgeltje evenwel nooit helemaal afgewerkt, en we konden dus vertrekken
van dit halffabrikaat. Er was een houten windlade, voorzien van elektrische
ventielen, voor de pijpen vanaf noot 48. Helemaal geen windlade echter voor
het grondoktaaf (noten 36-47). Voor die windlade zelf, kwam dik massief PVC
in aanmerking, zoals we dat met groot sukses al hadden toegepast in onze Hybr
reeks: <Hybr>, <HybrHi> en <HybrLo>. Maar ook zonder echte
windlade, mits gebruikmaking van losse 1/2" magneetventielen en heel wat
slangen moest het mogelijk zijn. De draagplank kon dan ook in traditioneel hout
worden gemaakt.
2.- Het bouwen van een op zichzelf staande module die bovendien ook interaktief
kan werken in funktie van publiek, bespelers en/of omgeving. Daarmee is bedoeld,
dat de automaat zelfstandig moet kunnen werken en dus geen externe apparatuur
zoals interfaces, een laptop, sensoren... nodig mag hebben. Om die interaktiviteit
mogelijk te maken voorzien we minstens twee Doppler-radar sensoren, waardoor
interaktiviteit via expressief relevante beweging mogelijk wordt gemaakt. Anderzijds
vergt deze vereiste de aanwezigheid van heel wat geheugen in de processoren
die voor de robot worden gebruikt. Alle repertoire moet immers in die chips
kunnen worden opgeslagen.
3.- Los van vorige uitgangspunten, wilden we met deze module aanvankelijk
een proefprojekt opzetten ter evaluatie van het koncept van zwaartekracht-kleppen.
Traditionele orgelautomaten maken gebruik van een windlade waarop de pijpen
worden geplaatst. Binnenin die windlade bevinden zich elektrisch bestuurde verntielen
die via een veer in rust gesloten worden gehouden. De veer is nodig, omdat de
ventielen 'ondersteboven' dienen te werken. Principieel zijn tegen dit traditioneel
ontwerp nogat wat bezwaren aan te voeren: de veer introduceert inherent een
risico op resonanties bij bepaalde bekrachtigingsfrekwenties. Het lekvrij monteren
van de ventielen vereist een engelengeduld en lekken ontstaan ook na montage
vrij makkelijk na verplaatsingen of transporten van de windlade. Konische ventielen
zijn wat dit betreft nog vele malen lastiger dan de meestal gebruikte vlakke
exemplaren. (cfr. bouwdagboek voor onze <Bomi>
robot en het paper dat
we in dat verband publiceerden) Het herstellen van een lek is bijzonder
tijdrovend, omdat alle pijpen dienen te worden verwijderd (... en achteraf herstemd...)
teneinde de bovenplaat van de windlade te kunnen bewerken. Vandaar ons idee
om de ventielen bovenop de windlade te monteren, zo dat ze in rust door de zwaartekracht
gesloten worden gehouden. Aangezien de pijpen -op grond van hun konstruktie-
niet goed ondersteboven kunnen worden gemonteerd, wilden we bij dit ontwerp
uitgaan van de toepassing van 'omkeer-cancellen', een soort U-konstrukties tussen
orgelpijp en ventiel. Gebruik van elastische slangen is natuurlijk ook mogelijk,
al moet bij langere trajekten rekening worden gehouden met de vertragingstijden
en drukverliezen.
Toen we, na een lange onderbreking, het projekt weer onder handen
namen wijzigden we heel wat van deze uitgangspunten: de oorspronkelijke windlade
behielden we. De nieuwgemaakt windlade voor het laagste oktaaf bouwden we aanvankelijk
met Banggood ventielen, maar na opbouw en test, bleek de doorlaat van deze ventielen
veel te klein voor de pijpen waarvoor ze bedoeld waren. We bouwden deze windlade
opnieuw, maar nu gebruik makend van 'klassieke' Laukhuff ventielen, behalve
voor de noten 36 en 47, waarvoor we zelfgebouwde ventielen gebruikten op basis
van de Banggood ventielen, maar nu zonder gebruik maken van het kraanhuis ervan.
Mensuur tabel voor de pijpen:
noot = midi note
length = measured from flue to pipe end. Between brackets: extra
length roerpijp (Rohrpfeife)
| Noot |
diameter (in mm) |
length |
foot |
orifice |
valve seat |
material |
PCB board |
output |
wire color |
| 36 |
110 - 113 |
1110 |
250 |
12 mm |
21 mm |
Zn |
PH0 |
1 |
twin |
| 37 |
107 - 108 |
|
|
12 mm |
30 mm |
Zn |
PH0 |
2 |
twin |
| 38 |
104 - 105 |
|
|
12 mm |
30 mm |
Zn |
PH0 |
3 |
twin |
| 39 |
100 - 100 |
|
|
12 mm |
30 mm |
Zn |
PH0 |
4 |
twin |
| 40 |
97 - 96 |
|
|
12 mm |
30 mm |
Zn |
PH0 |
5 |
twin |
| 41 |
94 - 94 |
|
|
12 mm |
30 mm |
Zn |
PH0 |
6 |
twin |
| 42 |
91 - 92 |
|
|
12 mm |
30 mm |
Zn |
PH0 |
7 |
twin |
| 43 |
87 - 90 |
|
|
12 mm |
30 mm |
Zn |
PH0 |
8 |
twin |
| 44 |
85 - 87 |
|
|
12 mm |
30 mm |
Zn |
PH0 |
9 |
twin |
| 45 |
81 - 84 |
|
|
12 mm |
30 mm |
Zn |
PH0 |
10 |
twin |
| 46 |
79 - 80 |
|
|
12 mm |
30 mm |
Zn |
PH0 |
11 |
twin |
| 47 |
77 - 78 |
563 |
200 |
12 mm |
21 mm |
Zn |
PH0 |
12 |
twin |
| 48 |
79 |
574 [125] |
200 |
|
18 mm |
Zn |
PH1 |
1 |
black |
| 49 |
76 |
|
|
|
|
Zn |
PH1 |
2 |
brown |
| 50 |
71 |
|
|
|
|
Zn |
PH1 |
3 |
red/green |
| 51 |
66 |
|
|
|
|
Sn-Pb |
PH1 |
4 |
orange |
| 52 |
|
|
|
|
|
Sn-Pb |
PH1 |
5 |
yellow |
| 53 |
|
|
|
|
|
Sn-Pb |
PH1 |
6 |
green |
| 54 |
|
|
|
|
|
Sn-Pb |
PH1 |
7 |
blue |
| 55 |
|
|
|
|
|
Sn-Pb |
PH1 |
8 |
purple |
| 56 |
|
|
|
|
|
Sn-Pb |
PH1 |
9 |
grey |
| 57 |
|
|
|
|
|
Sn-Pb |
PH1 |
10 |
white |
| 58 |
|
|
|
|
|
Sn-Pb |
PH1 |
11 |
black |
| 59 |
|
|
|
|
|
Sn-Pb |
PH1 |
12 |
brown |
| 60 |
|
|
|
|
|
Sn-Pb |
PH1 |
13 |
red/black |
| 61 |
|
|
|
|
|
Sn-Pb |
PH1 |
14 |
orange |
| 62 |
|
|
|
|
|
Sn-Pb |
PH2 |
1 |
yellow |
| 63 |
|
|
|
|
|
Sn-Pb |
PH2 |
2 |
green |
| 64 |
|
|
|
|
|
Sn-Pb |
PH2 |
3 |
blue |
| 65 |
|
|
|
|
|
Sn-Pb |
PH2 |
4 |
purple |
| 66 |
|
|
|
|
|
Sn-Pb |
PH2 |
5 |
grey |
| 67 |
|
|
|
|
|
Sn-Pb |
PH2 |
6 |
white |
| 68 |
|
|
|
|
|
Sn-Pb |
PH2 |
7 |
black |
| 69 |
|
|
|
|
|
Sn-Pb |
PH2 |
8 |
brown |
| 70 |
|
|
|
|
|
Sn-Pb |
PH2 |
9 |
red/orange |
| 71 |
|
|
|
|
|
Sn-Pb |
PH2 |
10 |
orange |
| 72 |
|
|
|
|
|
Sn-Pb |
PH2 |
11 |
yellow |
| 73 |
|
|
|
|
|
Sn-Pb |
PH2 |
12 |
green |
| 74 |
|
|
|
|
|
Sn-Pb |
PH2 |
13 |
blue |
| 75 |
|
|
|
|
|
Sn-Pb |
PH2 |
14 |
purple |
| 76 |
|
|
|
|
|
Sn-Pb |
PH3 |
1 |
grey |
| 77 |
|
|
|
|
|
Sn-Pb |
PH3 |
2 |
white |
| 78 |
|
|
|
|
|
Sn-Pb |
PH3 |
3 |
black |
| 79 |
|
|
|
|
|
Sn-Pb |
PH3 |
4 |
brown |
| 80 |
|
|
|
|
|
Sn-Pb |
PH3 |
5 |
red/blue |
| 81 |
|
|
|
|
|
Sn-Pb |
PH3 |
6 |
orange |
| 82 |
|
|
|
|
|
Sn-Pb |
PH3 |
7 |
yellow |
| 83 |
|
|
|
|
|
Sn-Pb |
PH3 |
8 |
green |
| 84 |
solenoids valve checked |
|
|
|
|
Sn-Pb |
PH3 |
9 |
blue |
| 85 |
spring checked |
|
|
|
|
Sn-Pb |
PH3 |
10 |
purple |
| 86 |
|
|
|
|
|
Sn-Pb |
PH3 |
11 |
grey |
| 87 |
|
|
|
|
|
Sn-Pb |
PH3 |
12 |
white |
| 88 |
|
|
|
|
|
Sn-Pb |
PH3 |
13 |
black |
| 89 |
|
|
|
|
|
Sn-Pb |
PH3 |
14 |
brown |
| 90 |
|
|
|
|
|
Sn-Pb |
PH4 |
1 |
red/black |
| 91 |
|
|
|
|
|
Sn-Pb |
PH4 |
2 |
orange |
| 92 |
|
|
|
|
|
Sn-Pb |
PH4 |
3 |
yellow |
| 93 |
|
|
|
|
|
Sn-Pb |
PH4 |
4 |
green |
| 94 |
|
|
|
|
|
Sn-Pb |
PH4 |
5 |
blue NC |
| 95 |
|
|
|
|
|
Sn-Pb |
PH4 |
6 |
purple NC |
| 96 |
|
|
|
|
|
Sn-Pb |
PH4 |
7 |
grey NC |
| 97 |
|
|
|
|
|
Sn-Pb |
PH4 |
8 |
white NC |
| 98 |
|
|
|
|
|
Sn-Pb |
PH4 |
9 |
|
| 99 |
|
|
|
|
|
Sn-Pb |
PH4 |
10 |
|
| 100 |
|
|
|
|
|
Sn-Pb |
PH4 |
11 |
|
| 101 |
|
|
|
|
|
Sn-Pb |
PH4 |
12 |
|
| 102 |
|
|
|
|
|
Sn-Pb |
PH4 |
13 |
|
| 103 |
|
|
|
|
|
Sn-Pb |
PH4 |
14 |
|
| |
|
|
|
|
|
|
|
|
|
Register 2 - salicional:
| 76 |
|
|
|
|
|
Sn-Pb |
PH5 |
1
|
|
| 77 |
check veer |
|
|
|
|
Sn-Pb |
PH5 |
2 |
|
| 78 |
|
|
|
|
|
Sn-Pb |
PH5 |
3 |
|
| 79 |
|
|
|
|
|
Sn-Pb |
PH5 |
4 |
|
| 80 |
|
|
|
|
|
Sn-Pb |
PH5 |
5 |
|
| 81 |
|
|
|
|
|
Sn-Pb |
PH5 |
6 |
|
| 82 |
|
|
|
|
|
Sn-Pb |
PH5 |
7 |
|
| 83 |
|
|
|
|
|
Sn-Pb |
PH5 |
8 |
|
| 84 |
check veer |
|
|
|
|
Sn-Pb |
PH5 |
9 |
|
| 85 |
|
|
|
|
|
Sn-Pb |
PH5 |
10 |
|
| 86 |
|
|
|
|
|
Sn-Pb |
PH5 |
11 |
|
| 87 |
|
|
|
|
|
Sn-Pb |
PH5 |
12 |
|
| 88 |
|
|
|
|
|
Sn-Pb |
PH5 |
13 |
|
| 89 |
|
|
|
|
|
Sn-Pb |
PH5 |
14 |
|
| 90 |
|
|
|
|
|
Sn-Pb |
PH6 |
1 |
|
| 91 |
pijp te luid |
|
|
|
|
Sn-Pb |
PH6 |
2 |
|
| 92 |
|
|
|
|
|
Sn-Pb |
PH6 |
3 |
|
| 93 |
|
|
|
|
|
Sn-Pb |
PH6 |
4 |
|
| 94 |
|
|
|
|
|
Sn-Pb |
PH6 |
5 |
|
| 95 |
|
|
|
|
|
Sn-Pb |
PH6 |
6 |
|
| 96 |
|
|
|
|
|
Sn-Pb |
PH6 |
7 |
|
| 97 |
|
|
|
|
|
Sn-Pb |
PH6 |
8 |
|
| 98 |
|
|
|
|
|
Sn-Pb |
PH6 |
9 |
|
| 99 |
|
|
|
|
|
Sn-Pb |
PH6 |
10 |
|
| 100 |
|
|
|
|
|
Sn-Pb |
PH6 |
11 |
|
| 101 |
|
|
|
|
|
Sn-Pb |
PH6 |
12 |
|
| 102 |
|
|
|
|
|
Sn-Pb |
PH6 |
13 |
|
| 103 |
|
|
|
|
|
Sn-Pb |
PH6 |
14 |
|
| 104 |
|
|
|
|
|
Sn-Pb |
PH7 |
1 |
grey |
| 105 |
|
|
|
|
|
Sn-Pb |
PH7 |
2 |
white |
| 106 |
na te zien |
|
|
|
|
Sn-Pb |
PH7 |
3 |
black |
| 107 |
|
|
|
|
|
Sn-Pb |
PH7 |
4 |
brown |
| 108 |
|
|
|
|
|
Sn-Pb |
PH7 |
5 |
red-yellow |
| 109 |
|
|
|
|
|
Sn-Pb |
PH7 |
6 |
orange |
| 110 |
|
|
|
|
|
Sn-Pb |
PH7 |
7 |
yellow-black |
| 111 |
|
|
|
|
|
Sn-Pb |
PH7 |
8 |
green-yellow |
| 112 |
|
|
|
|
|
Sn-Pb |
PH7 |
9 |
blue-grey |
| 2 |
was broken solenoid |
|
|
|
|
- |
PH7 |
10 |
purple NC |
| 113 |
|
|
|
|
|
Sn-Pb |
PH7 |
11 |
grey |
| 114 |
|
|
|
|
|
Sn-Pb |
PH7 |
12 |
white |
| 115 |
leak cured |
|
|
|
|
Sn-Pb |
PH7 |
13 |
pink/black |
| 124 |
red LED assembly |
|
|
|
|
light |
PH7 |
14 |
red/white |
| |
|
|
|
|
|
|
|
|
|
Voor de windvoorziening maakten we gebruik van een kleine Ventus
orgelblazer van de firma Laukhuff, met een regelbare winddruk van maximaal 80
mm waterkolom, of 8 mBar = 785 Pa, in eenheden uit de fysika. De aansturing
van de 150 Watt (0.2 HP volgens het motorlabel) motor gebeurt met een Siemens
G110 motorcontroller. Zoals voorspelbaar en volkomen normaal bij orgelpijpen,
is ook hier de stemming enigszins afhankelijk van de winddruk. Alleen bij een
motor AC frekwentie van 50 Hz is de stemming korrekt. Winddruk 80mm H2O.
Om een eenvoudige afregeling, stemming en intonering mogelijk te maken, monteerden
we een precieze manometer aan de buitenkant van de windlade. Het maximale debiet
van de kompressor is 3 kubieke meter, wat dus brede klusters ruimschoots mogelijk
maakt.
De radiale kompressor is voorzien van een geluidsdemper aan de
aanzuigkant evenals van een regelklep op de inlaat. Binnenin de balg is bovendien
een terugslagklep gemonteerd.
Tessituur:

Building logbook / Bouwdagboek:
Omdat ons vaak wordt gevraagd hoeveel werk en tijd kruipt in,
en nodig is voor, het bouwen van onze muzikale robotten, houden we ook voor
<Roro> een beknopt en geilllustreerd bouwdagboek bij:
- 18.10.2004: Yvan Vander Sanden, toen kompositiestudent bij mij aan het Gentse
Konservatorium, krijgt van Gerard Pels een onafgewerkt deel van een kistorgel
met elektrische ventielen. Met onze hulp en gebruik makend van onze PCB's
(ontwikkeld voor onze orgelrobots <piperola>, <vox humanola> en
<Harma>), automatiseert hij dit tot een vanuit de printerpoort onder
Linux bestuurbare automaat. Een kompressor had hij echter niet, en het orgeltje
werd dan ook van wind voorzien met een oude stofzuiger...
- 01.08.2007: Het onafgewerkte kistorgel komt via Yvan Vander Sanden in het
Logos atelier terecht. Twaalf losse baspijpen, een windlade, een doos losse
ventielen en onze eigen eerste-generatie PCB's...
08.10.2017: Eerste nieuwe ontwerpideen en bouwvereisten opgesteld.
- 09.10.2017: First estimate of building costs, including labor, calculated:
ca. 64.700 Euro. This seems way too much... it's not really worth it.
- 10.10.2017: Sketches for the gravity operated valves worked out. Test conical
valve with seat from massive PVC fabricated.
- 11.10.2017: The conducts between valves and pipes would introduce a certain
latency.
| wind pressure |
wind speed |
| 50 mm H2O |
29 m/s |
| 80 mm H2O |
38 m/s |
| 100 mm H2O |
42 m/s |
| 120 mm H2O |
47 m/s |
| 230 mm H2O |
60 m/s |
These data derived from the August Laukhuff Catalog p.6.44. If we want the
latency to stay below 1 cs, the lengths of the conducts should be limited
to 290 mm (at 50 mm H2O).
- Calculated results for the conical valves in Bomi:
-
| cone diameter |
top angle |
traject |
diameter of equivalent orifice |
| 35mm / 15mm |
110° |
5.2mm |
10 mm |
| 25mm / 12mm |
100° |
5.0mm |
7 mm |
| 20mm / 11mm |
85° |
6.0mm |
5 mm |
| 16.5mm /10.2mm |
81° |
6.0mm |
4.3 mm |
| 13mm/ 8.7mm |
72° |
6.0mm |
3 mm |
Not yet decided whether conical valves would be worth using here. We experienced
quite some trouble with <Bomi> and the physical adjustment (centering)
of these valves...
- 20.11.2018: Solenoid valves ordered from Banggood, China, came in, as we
were curious about the quality. We took them to the lab and found that they
start opening with a voltage of 5.6 Volt. At the nominal 12 V they draw 480
mA of current. On decreasing voltage they stayed opened down to 4.3 Volts.
Between this voltage and ca. 7V they can be operated as flow regulators. Operation
is reasonably silent, certainly if we compare them to the M&M valves we
used for <Vox Humanola> and <Piperola>. Another difference is
the orifice size: 1/2", way more then what we had on the earlier mentioned
organ robots. Using these valves for the lowest two octaves seems possible
and also would give us a lot of design freedom, as we are no longer forced
to place them on a regular windchest.
Valve solenoids:
Banggood, 1/2" solenoid valves used for the lowest pipes.
They
are very cheap and we used them here mainly for evaluation purposes. It
is possible to replace the solenoid and the plunger without opening the
windchest. The only parts inside the windchest are the 1/2" nuts holding
the nylon valve body in place. If ever the valve body needs to be replaced,
note that a 1/2" thread was made in the wood holding the valve. So,
they must be screwed out, not pulled out! Also observe the direction of
the windflow!
- 29.11.2018: ABB drive (type ACS355, ordered from Farnell) tested with a
small Laukhuff ventola blower... Failure, as we cannot bring the output voltage
down to 132 V... It overheats the motor. We need to figure out a star connection...
- 30.11.2018: Siemens Sinamics G110 drive, 0.12kW ordered from Conrad (ord.
nr 19879), with a BOP programming panel. Cost 201.49 Euro.
- 01.12.2018: Further tests conducted with the ABB motor controller and the
mini Ventola blower, rewired in star configuration. This now works fine, however
wind pressure will be too low to drive this robot. Found an interesting report
on organ wind supply by a dutch electro-engineer.
Here is a link. BOP-panel for the ABB drive ordered from Farnell.
- 05.12.2018: Design of a double sided PCB for the midi-hub board. Basically
it's the same board as designed for <HybrLo> and <Balsi>, but
double sided such as to avoid wire bridges and guarantee a better screening.
Here is the PCB design, component side and copper side:
After assembling, we wonder whether using a double sided PCB is worth all
the effort. Particularly because we cannot make metalized holes. After all,
placing a few wire bridges on a single sided PCB is much less work then soldering
all the via's on a double sided board...
- 12.12.2018: Here is a picture of the finished double sided hub board:
The single sided version was used for our <Balsi> robot.
- 24.05.2019: Further experiments performed with the Chinese PVC solenoid
valves (1/2"). We could either use 1/2" flanges for mounting, or
cut 1/2" threads in the windchest material, if we use PVC for it. Sketches
for the pipe layout drawn.
- 26.05.2019: Continued analysis of the existing pipework. Looks like the
minimum width of the organ should become 1200 mm.

- 28.05.2019: Compressor ordered from August Laukhuff: Ventus 600380 (3 m3/min,
80mm H2O 0r 800Pa). Motor power: 150W. Weight: 15 kg.
This is the same type as what we used for our <Piperola> robot.
- 29.05.2019: Inventary of the available pipes (99 in total, covering 72 notes!):
The highest
pipes for sure, will need some restauration work.
- 02.06.2019: We got a message from Laukhuff saying that the compressor we
ordered can only be delivered by the end of September 2019...
- 01.09.2019: Two organ blowers found on the flea market this morning: a Swiss
made Meidinger MF0601 type NTKX21 as well as an EMI K640, made in Utrecht,
Holland. Both brands do not exist anymore...
Both blowers can be
made to work again...
- 30.09.2019: The ordered Lauhuff blower came in. So we now can choose between
three blowers...
- 25.01.2021: After a year plagued by both health (cancer) and financial problems
(Logos subsidy) we reconsidered the project. Anticipating that we probably
do not have a long life in front of us anymore, we may very well simplify
this project such that finishing it and bringing it to a usefull state for
musicians becomes realistic. This would entail that we would keep as much
as possible from the original construction, including the original windchest.
As this is made in wood, we need to foresake the original idea of making it
a weatherproof instrument. Minimum sizes of the instrument would become: 1200
mm x 450 mm x 2000 mm. The original windchest measures 1100 x 270 mm, but
does not include the twelve lowest octave pipes. Here are some pictures of
the internals of the windchest:
The wiring is done
with wires of a gauge smaller than what we would normally use, but as its
in a perfect shape we decided not to replace it. The wiring style, using these
typical curled wires, goes back on a tradition that started at the end of
the 19th century!
- 26.01.2021: Two 270 mm square stainless steel tubes cut to hold the sides
of the windchest. Solenoid valves 1/2" selected for use on the bass octave.
Accordion bellows digged up for potential use on <Ror>. Can be used
to stabilize windpressure and to make the tremulant. 1/2" nuts ordered,
for mounting the valves on a windchest or holding plate.
- 27.01.2021: Accordions work on windpressures between 5 mm H2O
and 100 mm H20 ( 50 Pa to 1000 Pa), so we are on the
safe side by using such bellows, taking into account that the static pressure
produced by the Laukhuff blower we anticipate to use here, is 80 mm H20
(800 Pa). Bellow and windpressure regulation construction started. Sizes will
be 422 x 224, h=235, in mm. Considering the possibility to mount a large solenoid
inside the bellows to be used as a tremulant. Here is a drawing with the sizing
used:
These bellows
connect to the Ventus blower with four M5 x 40 bolts. The heads of these bolts
are glued inside the bellow construction. We cannot finish this construction
before we have the angled flanges to be used for feeding both windchests available.
- 28.01.2021: 1/2" nuts digged up... we had 100 pieces in stock: Viega,
made in Germany nr. 102 241 - 1911 1/2, in bags with 10 pieces each. Windvalve
made for the inlet of the bellow construction. Two outlets welded using 90
degree 50 mm diameter knees and a flange. Bottom plate finished, but we still
have to make a gasket to make it airtight. We can use a piece of silicon membrane
here.
- 29.01.2021: Some pictures of the newly made bellows:
. At the same time we also
made some documentation pictures of the Chinese Banggood valves to be used
on the low windchest:
And this is what the valves look like after placing the solenoids upside down:
The left valve is the original, the right one the reversed one.
As can be read from the label, these valves can be used for pressures up to
10 kPa, equivalent to 1000 mm H2O. The cold resistance
of the coil is 24.8 Ohm, so at 12 V the current will be 500 mA. Welding work
on the windchest for the lowest pipes: length 1200 mm, width 130 mm. Test
mount of four valves with 1/2" nuts. Drilling of the holes: 20 mm size,
after drilling, feed a 1/2" BSW tap through the hole.
- 30.01.2021: Milling of a first series of holders for the pipe feet in the
lowest register:
With the
pipes standing on these holders and mounted on the windchest it looks now
like this:
As we run out
of 1/2" couplers in brass, we ordered a bunch of new ones:
These
are a bit smaller in diameter, but still large enough to do the milling and
match them to the somewhat higher pipes. Possible designs for the wheelbase
sketched. A four-wheeler with two large wheels in the middle seems to be the
most compact construction. However, we do not have the tyres for 600 mm diameter
wheels in stock... We do have a couple of very sturdy 150 mm wheels, mountable
in a pivoting wheel holder. This would be the same type as used for <Bello>.
- 31.01.2021: Further design work. We are extremely limited by not having
any funds and thus by having to work with whatever we still have available
and in stock. We digged up a bunch of PCB's designed for our player piano
in 2006. These can now be used for <Ror> in any case.
- 01.02.2021: Scary to discover that our favorite Microchip PIC's 18F4620
aren't any longer available at Farnell and neither at RS-Components... ASAP
we ordered everything (16 pieces) they still had in stock at Conrad.
- 02.02.2021: Start soldering of the required pulse-hold boards. This is the
old recipy, checked once more on the oscilloscope:
P-channel
mosfets used here are VP0109, as the BS250 types we used in older robots are
no longer on the market. The VP0109's are specified for -90V, 500mA, RsON<
8 Ohm. They are made by Microchip. Here
is the datasheet. For the velo-pulse drivers we used IRF540, as these
withstand Ug +/-20V easily. The specs. for the IRL640 are a bit ambiguous
in this respect: data sheets give max.values between +/-10V and +/-20V for
this type.
- 03.02.2021: Three pulse-hold PCB's soldered. Leadfree for a change. Looks
like we are running out of IRL640 Mosfets, VP0109 P-channel mosfets, diodes,
red LED's, 4k7 resistors... A fresh load of Microchip 18F4620's came flowing
in from Conrad. None in stock anymore there now. Further milling of the 1/2"
brass pipeholders. Since we have note overlaps in the pipes, we may just as
well implement program change to select pipe sets here.
- Board mapping:
- Board 1: 36 - 47 (12 pipes)
- Board 2: 48 - 61 (14 pipes)
- Board 3: 62- 75 (14 pipes)
- Board 4:76 -89 (14 pipes)
- Board 5: 90 - 93 ( 4 pipes)
- Board 6: 76 - 89 ( 14 pipes) - reg 2.
- Board 7: 90 - 103 (14 pipes) - reg 2.
- Board 8: 104 - 115 (12 pipes) - reg 2.
- 04.02.2021:Solving some design problems... Four wheels or six wheels, that's
the question...
- 05.02.2021: TIG-welding of the base chassis: 30 x 50 x 2 profiles, 1100
mm long, welded together in a rectangle as a holder for the compressor and
the bellows. Vibration dampers with M6 threads digged up, so we can use them
for the mounting of the compressor.
- 06-07.02.2021: Some quite extensive soldering work at hand...:
And
of course, we are running out of components.
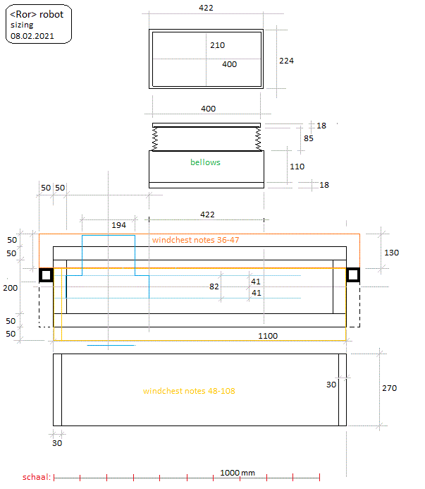
- 08.02.2021: Sizing recalculated and redrawn:
Vertical drawing to be measured and calculated such as to stay with a height
smaller than 2 meters.
- 09-11.02.2021: More soldering work on the boards.
- 12.02.2021: Measurement of the characteristics of the solenoid valves inside
the existing windchest: DC resistance 130 to 150 Ohms, so there is quite some
variation here... Nominal current at 12V is 85 mA. When we bring the voltage
down to 5 V, the valve closes. It re-opens at 9 V. So the power supply requirements
can be calculated at 12V - 10A, for the hold voltage, and 6 to 10 V - 6 A
for the pulse voltage. Some flow regulation is possible with voltages between
5 and 9 V.
- 13.02.2021: Construction of a power supply. As this PCB is very simple,
we hand-milled it on a suitable piece of PCB material. Here is the circuit:
Using this circuit
in combination with the pulse-hold boards, will set the hold voltage over
the solenoids to 10.8 Volts.
- 14.02.2021: Soldering the midi-hub board. This board seems suitable to also
carry the motor control functions. Circuit redrawn:
Some more welding on the base structure for holding the radial compressor.
For mounting the motor we use 2 pieces of 30 x 30 x 2, length 200 mm, stainless
steel. Shock absorbers (M6 threads) are used to mount the motor. There will
be place for the Siemens motor controller adjacent to the motor., thus minimizing
EMC.
- 17.02.2021: Power supply PCB finalized and tested.
- 18.02.2021: Construction of a mount for the Siemens motor controller.

- 19.02.2021: Further welding work on the base structure:
Construction of the mains power inlet and the bipolar on/off switch:
Tentative mount of the wheelbase using wheels recycled from a wheelchair:
Overview power circuitry:
- 20.02.2021: Further work on the bellows and the mounting components for
the dual 12V power supply and the hub board.
- 26.02.2021: Construction of the 51 mm wind inlet on the lower windchest.
Mounting of this windchest on the vertical poles will be with M12 bolts. We
decided not to weld this.

- 27.02.2021: Drilling work for the 100 mm M6 bolts and nuts used to close
the lower windchest.
Wouldn't
it be better to use a geared DC motor for driving the tremulant rather than
a hefty solenoid? A Crouzet motor 51W /3Nm, 333rpm or 27W 5Nm, 147 rpm looks
suitable. Cost ca. 300 Euro...
- 28.02.2021: Welding of the side panels on the lower windchest. Testing the
closed windchest for leaks. Designs for possible pipeholders drawn.
- 06.03.2021: Welding, finishing and mounting of the wind inlet on the lower
windchest.
- 07.03.2021: Making the windchest airtight with silicone rubber. The underside
of the windchest should never be opened again. Only the upperpanel can be
taken off for servicing, if ever needed.
- 08.03.2021: Vertical posts for the pipeholder welded. It will mount in top
of the windchest using four 140 mm long M6 bolts. Holding the pipes in place
can be done with long nylon tie straps. On the backside, we will need curved
pipe rests. These can be made from wood, polycarbonate, rubber or even felt.
- 09.03.2021: Drawing and drilling of the 12 mm mounting holes for the low
windchest in the vertical 50 x 50 x 5 columns.

- 10.03.2021: drilling of the holes for the straps to hold the pipes in place
on the windchest. These are the sizes:
| Note |
pipe diameter range (in mm) |
body diameter pipe |
length pipe |
foot height |
distance on windchest 1200 mm, total length |
| 36 |
110 - 113 |
107 |
1110 |
250 |
60 |
| 37 |
107 - 108 |
103 |
|
|
171 |
| 38 |
104 - 105 |
100 |
|
|
278 |
| 39 |
100 - 100 |
97 |
|
|
384 |
| 40 |
97 - 96 |
93 |
|
|
490 |
| 41 |
94 - 94 |
90 |
|
|
592 |
| 42 |
91 - 92 |
88 |
|
|
689 |
| 43 |
87 - 90 |
85 |
|
|
783 |
| 44 |
85 - 87 |
81 |
|
|
873 |
| 45 |
81 - 84 |
79 |
|
|
965 |
| 46 |
79 - 80 |
77 |
|
|
1054 |
| 47 |
77 - 78 |
74.5 |
563 |
200 |
1150 |
The pipe holder bar is made from stainless steel 20 x 10 x 1200 bar material.
First test mount with a few pipes on the welding table. Would it be possible
to mount the mosfet PCB also in top of this windchest? And, what about some
lights?
- 11.03.2021: Crouzet motor besteld voor de konstruktie van de tremulant:
27 W, 24 V geared DC, 5 Nm, 147 rpm, 8 mm as. RS order number: 224-3596. Kost:
ca. 305 Euro. Dit is hetzelfde type dat we ook gebruikten voor de besturing
van de lage resonatoren op Tubo.
- 12.03.2021: Crouzet motor geleverd. LED strips besteld bij Farnell.
- 14.03.2021: Boren en precies centeren van de 12 mm montagegaten in de vertikale
5 mm dikke kokerprofielen.

- 15.03.2021: Voorbereiden van de leggers ( 25 x 25 x 3) voor de montage van
de hoge windlade. Uittekenen van de mogelijke bevestigingswijzen voor de lage
pijphouder tegen de vertikale draagprofielen.
- 16.03.2021: LED strips voor mogelijke verlichting van de pijpen geleverd:
wit, rood, blauw: 14.4W / m, 24 V. Dit brengt de maximale stroom te leveren
door de 24V voeding op ca. 3.5 A.
- 17.03.2021: Aanlassen van de steuntjes voor de lage pijphouder op de vertikale
opstanden. Lassen van de dragers voor de hoge windlade. Boren van de montagegaten
op het onderchassis. Alle boorbewerkingen op het onderchassis moeten gebeuren
vooraleer we de vertikale opstanden aanlassen. Zagen en boren van de ashouders
voor de grote wielen (diameter 610 mm). Hiervoor gebruiken we twee stukjes
rechthoekig kokerprofiel 50 x 30 x 2 x 100 met een 16 mm diameter gat op 80
mm hoogte. Wat de tremulant betreft: een montage aan de buitenkant van de
balg lijkt toch meer aangewezen. Immers, montage binnenin de balg maakt het
herhaaldelijk openen en sluiten van de balg noodzakelijk om de tremulant goed
te kunnen afregelen. Natuurlijk zouden we de afregeling kunnen doen met de
motor buiten, en nadien de hele zaak met de precies bepaalde hefboomlengtes,
definitief binnenin de balg monteren...

- 18.03.2021: Konstruktie van steuntjes voor de pijpen 36-47 gedelegeerd naar
Mattias Parent. Konstruktie van de asdrager voor de 610 mm rolstoelwielen.
Berekenen en uittekenen van de excentriek voor de aandrijving van de tremulant
op de balg:
Dit wiel wordt
gemaakt uit 10 mm dik staal. De M4 schroefdraad voor de stelschroef, wordt
ingetapt. Het is duidelijk dat de oplossing getekend in de tweede tekening,
superieur is boven de eerste oplossing. Merk op dat de amplitude gelijk is
aan tweemaal de gekozen straal (A,B,C,D,E,F of G in de tekening).
- 19.03.2021: Afwerking programmawiel voor de excentriek.
Konstruktie
van het aanhechtpunt bovenop de balg. Hiervoor gebruiken we een stukje messing
T profiel. Geen inox, want dat T-profiel loopt lichtjes taps terwijl het hard
messing profiel -we hadden het nog op voorraad sedert de bouw van <Puff>-
zuiver haaks is zonder enige afronding. Wanneer we de grootst mogelijke amplitude
instellen, riskeren we wel teveel zijdelingse bewegingen van de balg te krijgen...
Alleen een praktijktest kan hier klaarheid in brengen. Afwachten dus...
- 20.03.2021: Lassen van de wieldrager: 2 stukjes 50x30x2 en een verbindingsstuk
van 25x25x2x240 voorzien van 12 gaten voor M12 bevestigingsbouten. Deze zijn
er alleen voor versteviging, want de zijkanten van het rechthoekprofiel waarop
de grote wielen vastzitten wordt op het onderstel vastgelast.
- 21.03.2021: Aftekenen van de nodige boorgaten op het onderchassis. Opnieuw
demonteren van de voorlopige opbouw. Onze hernia begint ons weer eens parten
te spelen...
- 22.03.2021: Onderchassis afgelast en pasgezet met de wielen:

- 26.03.2021: Vertikale opstanden haaks gezet en aangelast. TIG laswerk waar
nodig uitgevoerd met de linkerhand.

- 27.03.2021: Takels in stelling gebracht voor de verdere montage:
Lasnaden
aan de onderkant 'boven de kop' gelast, met het werkstuk zo hoog mogelijk
getakeld. Veel laswerk durven we niet doen, vanwege onze verzwakte en SBRT
bestraalde linkerlong. (SBRT= stereotactical body radiation therapy).
- 29.03.2021: Afwerken montageplaat in polykarbonaat voor het hub board en
de note/puls driver voor de lage windlade.
- 30.03.2021: Polykarbonaat plaat gemaakt als drager voor de voedingen. Deze
plaat komt onderaan de balg.
- 31.03.2021: Motor en balg opnieuw in het chassis geplaatst. Verifikatie
van de maatvoering. Begin bedrading van de voedingslijnen.
- 01.04.2021: Bestukking van het midi hub board. Narekenen van komponenten
voor de besturing van de motoren. De Sinamics G110 controller zal opnieuw
moeten geprogrammeerd worden, hij is immers afkomstig van een vorige versie
van <So> waar hij werd gebruikt voor een mini Ventola radiale kompressor
werkend op 132V in driehoekschakeling.
- 02.04.2021: Pijpsteuntje in hout voor de lage windlade afgewerkt door Mattias
Parent.
Redaktie van
een eerste versie van de firmware voor het midi hub board.
- 03.04.2021: E10 halogen bulbs mounted. Testmontage met Bert en Mattias:

- 04.04.2021: Montage van het onderste voedingen bord.
- 06.04.2021: Bedrading... en we vallen zonder Faston konnektors.
- 07.04.2021: Faston's geleverd. Bedrading van de lage windlade zo goed als
klaar. Alle draden voorzien van kabelschoentjes... Dit is de eerste machine
waarop we kabelschoentjes gebruiken... Redaktie van de firmware voor het puls-hold
board voor de lage windlade. Automatische nootrepetitie wordt volledig geimplementeerd!
Voorlopig hebben we echter nog geen testkode in GMT...
- 09.04.2021: Verdere bedrading. Montage 6V halogeenlampjes met E10 fitting
op de onderplaat. Bedrading midi-hub board. Eerste elektrische test: motor
draairichting aangepast en motor bedraad voor driehoeksschakeling. De voedingen
doen het zoals het hoort...

- 10.04.2021: Siemens Sinamics motor controller reprogrammed for operation
with this motor and 3 x 230V. The G110 we have (recycled from <So>)
can only deliver 2.3A , or 120W and thus is only marginally suitable here.
- 11.04.2021: Mounting of the pulse-hold board on a large polycarbonate carrier
plate. We vallen echter zonder 6mm hoge M3 afstandsbussen in aluminium...
Ook het gebrek aan 3-polige Weidmueller konnektors laat zich voelen nu. Alle
M3 boutjes waarmee de kontakten worden gemaakt met de voedingslijnen en met
massa zijn in messing en met verzonken kop aan de achterzijde van de montageplaat.
Om een printplaat weg te nemen volstaan het de zes M3 moertjes aan de onderdelenkant
los te schroeven met een 5.5 mm potsleuteltje.

- 12.04.2021: Testkode geschreven binnen GMT. Roro geimplementeerd in alle
modules van GMT. We dienden de oorspronkelijke naam voor deze robot , <Ror>
te wijzigen naar <Roro> omdat Ror een library instruktie is in onze
software library: 'rotate right' waardoor een struktuur met de naam ror as
musician niet te definieren bleek. Een gelijkaardig probleem hadden we al
met <Pos>, waar we het in de software oplosten met de naam pos_.
- 14.04.2021: Vastkleven van alle twaalf hardhouten pijpsteuntjes voor het
laagste oktaaf.
- 15.04.2021: Laswerk flens voor de windinlaat van de hoge windlade:

- 16.04.2021: Ontwarren van de bestaande bedrading van de ventielen in de
windlade. Helaas heeft Pels (maar klaarblijkelijk is dat een verfoeilijke
gewoonte ook bij andere orgelbouwers...) voor de bedrading antieke en miezerig
dunne stugge koperdraad met zijde-isolatie gebruikt zonder enige vorm van
(kleur)kodering.
Voorbereiding
van soldeersteuntjes voor de verbindingen naar de PCB's.
- 17.04.2021: Voorbereiden en monteren van de nodige draadsteuntjes met soldeerlippen.
Het uitzoeken van de juiste draadjes wordt een werk van lange adem.
- 18.04.2021: Bij nader onderzoek en uitmeten, blijkt de hele door Gerard
Pels gebouwde windlade erg scheluw te zijn... Minstens 12 mm schuinstand over
een lengte van 1100 mm. Dat heb je natuurlijk met konstrukties uit hout. Gaan
we dit rechttrekken op onze soliede staalkonstruktie of gewoon met wat spiestukjes
korrigeren? Alle magneetventielen blijken een beetje los te staan in de windlade.
Was dit wellicht de bedoeling van Pels om zodoende foutjes in de klepsluitingen
te verhelpen? Nadeel daarvan is wel dat het erg veel bijgeluiden oplevert.
Soldeerwerk van bestaande kablering met miezerige zijde-geisoleerde geemailleerde
scheldraad naar deugdelijke ,het weze antieke, draadsteuntjes met soldeerlippen:
een geduldwerkje...

- 19.04.2021: Verder soldeerwerk... Alleen de spoel voor noot 113 blijkt een
probleem op te leveren.
Nameten leert ons dat
die spoel wel degelijk stuk is. De eenvoudigste oplossing bestaat erin gewoon
1 noot weg te laten en het register te laten lopen tot noot 115 in plaats
van 116... Alle ijzeren houtschroeven waarmee de pijpbasis -de bovenkant van
de windlade- vastzit op de vertikale opstanden van de windlade, vervangen
door messing bolkop exemplaren 6mm x 50mm.
- 20.04.2021: De windlade blijkt niet meer goed te passen tussen de vertikale
inox opstanden: door het oplassen van de draagprofielen voor de windlade moeten
ze een beetje gebogen zijn geraakt ofwel worden ze naar binnen gedrukt door
de pijphouder van de onderste windlade. Alle PCB's van firmware, versie 1.0,
voorzien. Board nr.2 bleek niet te werken, maar de oorzaak was gauw gevonden:
Deugdelijk vastsolderen
van de ICD-konnektor loste dit probleem meteen op. Pijphouder en balg van
een dun laagje vernis voorzien. De houten dragers hiervoor gaan we niet behouden,
wegens te kwetsbaar in transporten. We gaan de pijphouder vastzetten op twee
nog aan te lassen stukjes 25x25x3 inox profiel, lengte 270 mm.
- 21.04.2021: Afwerking hoge windlade en eerste testmontage op het chassis.
Konstruktie van een afdichting op de wegneembare onderwand van de windlade.
Herstelling van pijp 48, waarvan de schoorsteen afgebroken was: soldeerwerk.
Aanlassen van de dragers voor de pijphouder en montage van de pijphouder op
het chassis. De robot wordt met behulp van de takels van de lastafel afgehaald
en na montage van de wielen, op de grond gezet.
Nameten
van de definitieve hoogte van de robot: 2150 mm.
- 22.04.2021: Verdere bewerking van de pijphouderplank: aanbrengen van siliconenrubber
dempringen voor het vastzetten van de pijpen:
Witte
LED strip van 1 meter vastgemaakt op de pijphouder van de bovenste windlade.
Zo'n strip moet ook nog worden aangebracht op de onderste windlade, maar daarvan
moeten we eerst het hout (multiplex) van verdunde verf, beits of vernis voorzien.
De besturing is geimplementeerd op het midi-hub board, waar ook een 24V spanning
voorhanden is. De voorraad 0.5 mm draadschoentjes raakt uitgeput...
- 23.04.2021: Nieuwe voorraad witte kabelschoentjes ingekocht. Bedrading hoge
windlade afgewerkt.
Multiplex
hout van de lage windlade behandeld met verdunde zwarte verf. Allereerste
elektrische test van het geheel... Allereerste bemerkingen: 1.- motor controller
valt uit bij elke wijziging van het toerental (uit te voeren tests: PIC code,
test motor controller programma settings, test hub board hardware) 2.- Te
weinig druk in de lage windlade: pijpen spreken niet aan... Het is niet uitgesloten
dat de doorlaat van onze chinese ventielen -nominaal 1/2"- toch te klein
is voor deze windlade. In dat geval moeten we een nieuwe windlade bouwen en
grote ventielen monteren. 3.- Velocity geeft geen enkel effect: check PIC
firmware op oscilloskoop 4.- We hebben nog geen slider kontrole voor de tremulant.
5.- De hoogste noot heeft een lek (kan ook in de firmware een oorzaak hebben:
test board 7) 6.- Er zijn kleine lekken aan de zijkant van de lage windlade
en in de sluiting van de bovenste windlade. 7.- de registers moeten nog geimplementeerd
worden in de firmware.
- 24.04.2021: Korrekties PIC kode voor het hub board. Dit werkt o.k.nu. G110
motor kontroller opnieuw geprogrammeerd, met enkele kunstgrepen om toch tot
een wisselstroomfrekwentie van ca. 65 Hz te kunnen komen bij een analoge ingangsspanning
van 8.6 Volt. Maar, ook bij die verhoogde winddruk, spreken de pijpen voor
de noten 36 tot 47 nog niet goed aan, laat staan dat ze de gewenste krachtige
toon zouden voortbrengen... Het ziet ernaar uit dat de doorlaat van de Chinese
Banggood ventielen toch te klein is voor dergelijke grote pijpen. Bijgevolg,
zullen we gedwongen zijn de lage windlade opnieuw te ontwerpen en te bouwen
met 'normale' ventielen en grote doorlaat. De tremulant werkt nu, maar de
amplitude is duidelijk nog veel te groot. Ook kan het noodzakelijk zijn het
maximaal toerental wat te beperken. Wanneer de motor blokkeert, trekt de motor
meer stroom dan wat de voeding kan leveren en dan gaat deze in hik-modus (hickup
mode)...
- 25.04.2021: Nameten van de winddruk in en op de windladen met een U-buisje
en een gekalibreerde manometer (Eriks). Tabel met meetwaarden opgesteld. Zie
onderaan. Nieuwe ontwerpen voor de lage windlade uitgetekend. Uitzoeken van
bruikbare materialen: hout, ventielen, kunststoffen, elektrische aansluitingen.
We hebben nog 11 August Laukhuff type 30 mm diameter flat pallet valves in
stock. Da's eentje tekort... De bouwhoogte is 50 mm zodat de windlade slechts
een beetje dieper moet gebouwd worden.
- 26.04.2021: Konstruktie van de nieuwe lage windlade. Voor het ontbrekende
ventiel kunnen we de elektromagneet van een Banggood ventiel gebruiken, met
enkele modifikatie. Het ventiel huis kunnen we helemaal weglaten en op de
bestaande afsluitklep in siliconen, kunnen we een groter polster lijmen waarmee
we het 12 mm grote gat in de windlade voor de windtoevoer naar de pijp kunnen
afsluiten. De elektromagneet met omgebouwd anker kunnen we nu met behulp van
vier afstandbusjes (hoogte 12 mm) en vier houtschroefjes aan de binnenbovenzijde
van de windlade bevestigen. Hier enkele foto's die de ombouw kunnen verduidelijken:

27.04.2021: Uitboren van de lange gaten, diameter 6 mm, voor de sluitingsbouten
van de windlade. De bevestiging van de tremulant motor moeten we helemaal
opnieuw ontwerpen door de gewijzigde hoogte van de windlade. We beslisten
de nieuwe windlade toch maar een kleur te geven: vuurrood, zoals ook gebruikt
voor piperola.
De elektrische
aansluiting gebeurt met faston konnektors net zoals bij de eerst ontworpen
, gebouwde en verworpen windlade. De Faston konnektors worden met M3 x 35
messing boutjes en moertjes op en dwarsdoor de windlade gemonteerd. Hier is
een detail: 
- 28.04.2021: Opnieuw afmeten en plaatsen van de pijphouder op de nieuwe windlade.
Montage van de ventielen in de windlade en elektrische aansluiting ervan.
Wanneer we de gaten in de windlade boren op 12 mm, is de doorlaat 113 mm2.
De kleppen moet een doorlaat hebben die minstens even groot is. Bij gebruik
van polsters met een diameter van 21 mm en een openingstrajekt van 2.5 mm
wordt de doorlaat van de klep 165 mm2. Dit wordt bereikt met de Banggood spoelen
gemonteerd met afstandbusjes van 12 mm hoogte. Bij gebruik van 15 mm hoge
afstandbussen krijgen we een doorlaat van 363 mm2.
Het bewegingstrajekt van de klep wordt dan 5.5 mm waardoor de reaktiesnelheid
evenredig afneemt. De polsters met diameter 21 mm waren de grootste die we
konden gebruiken in kombinatie met deze elektromagneten. Grotere polsters
zouden de afstandbussen raken en dus klem komen te zitten. We monteerden twee
op deze wijze opgebouwde ventielen, met 12 mm afstandsbusjes, voor de noten
36 en 47. Dit, teneinde de ventielen te kunnen vergelijken met de Laukhuff
exemplaren die we voor de overige noten op deze windlade gebruikten:
De doorlaat van deze
Laukhuff ventielen, wanneer we uitgaan van een openingstrajekt van 2 mm, beloopt
188 mm2. Zoals te zien op de foto's, monteerden we deze ventielen op een rubbermatje
van 3 mm dikte: hierdoor kan de winddichtheid vrij goed afgeregeld worden.
Indien we onverhoopt toch nog met lekken af te rekenen zouden krijgen, kunnen
we steeds de veertjes in deze ventielen vervangen door wat krachtiger exemplaren.
Dat hadden we meer dan tien jaar geleden ook al gedaan bij de bouw van de
windlade voor de <Qt> robot en de nodige veertjes hebben we nog ruimschoots
op voorraad.
- 29.04.2021: Afwerking lage windlade:
Uitwerking
nieuwe bevestiging en ophanging van de tremulant motor. De beugel wordt gelast
uit 4 mm dik inox:
De motor
eenheid wordt met twee van de lange M6 bouten waarmee de lage windlade sluit,
vastgezet. Voor het verwijderen van deze windlade moet de motor dan ook losgemaakt
worden. 
- 30.04.2021: Pijpen teruggeplaatst en eerste tests op lekken en luchtdebiet.
De pijpen werden hier
voorlopig slechts met losse eindjes elektrisch snoer vastgehouden. Bij de
definitieve montage worden nylon ligatuurtjes gebruikt. Aan de kant van de
hoge windlade komt <RorO> er nu zo uit te zien:
Nog niet alle pijpen werden hier teruggeplaatst en de windladen staan nog
maar voorlopig met lijmknechten vastgezet. Ook de tremulant motor is hier
nog niet terug geplaatst. We hebben wel wat bedenkingen bij de draagkracht
van de wielen... Een bepaling van het totale gewicht lijkt nu wel hoogst noodzakelijk.
Weging uitgevoerd met vier personenweegschalen: uitkomst 141 kg. Daarbij moeten
we nog het gewicht van de tremulant eenheid toevoegen waardoor we uitkomen
op 143kg. Dat is 23 kg meer dan het maximaal gewicht dat de rolstoel waarvan
we de wielen gebruikten volgens de specifikatie kon verdragen. Hier is de
verdeling van de gewichten over de vier wielen: 
- 01.05.2021: Tremulant motor teruggeplaatst, maar het ontwerp moet toch verder
worden uitgewerkt omdat de motor nu regelmatig blokkeert. Een tweede belangrijke
observatie: het was niet zo'n goed idee een balg van een oud Hohner akkordeon
te gebruiken. Zo'n balg levert zo goed als geen akoestische isolatie op, wat
in een akkordeon natuurlijk juist een bonus is. Daardoor is het geluid van
onze kompressor evenwel heel wat luider dan wat we hadden kunnen verwachten.
Alleen wanneer de balg volledig samendrukken, is de isolatie zoals verwacht,
maar uiteraard ondermijnt dit de stabiliserende werking van de balg. Over
het nut van zo'n balg in een motor gestuurde windvoorziening, bestaat overigens
wel wat diskussie onder orgelbouwers. Immers een drukregeling via feedback
naar de motorkontroller is een erg valabel alternatief voor een balg. Een
tremulant is echter niet te verwezenlijken op die manier vanwege de grote
inertie van de radiaal kompressor.
- 02.05.2021: Ontwikkeling van de firmware en testkode daarvoor: implementatie
van de registratie mogelijkheden. Nu kunnen we de rij pijpen voor de noten
76 tot 105 naar keus definieren als 8-voet, 4-voet of sesquialter (duodecime)
register. Het program-change kommando wordt gebruikt voor de registratie.
Mogelijke waarden:
| nr. |
binair |
register |
| 0 |
00000 |
alles uit |
| 1 |
00001 |
pedaal 36-47 |
| 2 |
00010 |
roerpijp solo 48-93 |
| 3 |
00011 |
roerpijp + pedaal 36 - 93 |
| 4 |
00100 |
salicional solo 76 - 115 - als 8" |
| 5 |
00101 |
salicional 8" + pedaal 36-47 en 76 - 115 |
| 6 |
00110 |
salicional 8" + roerpijp 48 - 115 |
| 7 |
00111 |
salicional 8" + roerpijp + pedaal (36-115) |
| 8 |
01000 |
salicional 4" solo (64 - 103) |
| 9 |
01001 |
salicional 4" + pedaal (36 - 47 en 64 - 103) |
| 10 |
01010 |
salicional 4" + roerpijp ( 48 - 103) |
| 11 |
01011 |
salicional 4" + roerpijp + pedaal ( 36 - 103) |
| 16 |
10000 |
salicional duodecime solo |
| 17 |
10001 |
salicional duodecime + pedaal |
| 18 |
10010 |
salicional duodecime + roerpijp |
| 19 |
10011 |
salicional duodecime + roerpijp + pedaal |
| 32 |
100000 |
salicional 2" solo ( 52 - 91) |
| 33 |
100001 |
salicional 2" + pedaal ( 36-47 en 52 - 91) |
| 34 |
100010 |
salicional 2" + roerpijp ( 48 - 93) |
| 35 |
100011 |
salicional 2" + roerpijp + pedaal ( 36 - 93) |
Voor het stemmen en intoneren is de volledige lijst van groot belang, maar
voor komponisten zullen wellicht alleen volgende registraties van praktisch
nut zijn: 3, 7, 11, 19 en 35.
- 03.05.2021: Herprogrammeren van alle PIC's. Updaten van de dokumentatie.
Er is nog een bug op te sporen in de kode voor de 14-output boards waardoor
noteoff niet werkt maar noteon met velo = 0 wel...
- 04.05.2021: Automatische note-repeats opnieuw geprogrammeerd, nu met een
logaritmisch getemperde scaling tussen 2 Hz en 16 Hz. Dit werkt muzikaal heel
wat beter dan een lineaire verdeling. De lookup hiervoor berekenden we met
een eenvoudig programmatje geschreven in de PBcc kompiler van PowerBasic.
Hier is het:
LOCAL i, t AS SINGLE
DIM Dur(127) AS INTEGER
CONSOLE SCREEN 34,80
t = 25E-6
OPEN "Roro_LUT.txt" FOR OUTPUT AS #1
Dur(1) = 0.5 / t
FOR i = 2 TO 127
Dur(i) = Dur(1) * (8.0 ^(-i/127)) ' voor RorO 2hz tot 16Hz
NEXT i
' write a lookup for the PIC firmware:
FOR i = 1 TO 127
PRINT#1, "Dur[" & TRIM$(STR$(i)) & "]="; STR$(Dur(i)\ 2); " ' freq= "; 1/(Dur(i)
* t)
NEXT i
CLOSE
Met hoge instellingen voor keypressure, kan nu een heel goed flatterzunge
effekt bereikt worden. De velo waarden mogen echter niet te groot zijn en
zeker niet groter dan 111. Meer kommentaar en uitleg is opgenomen in de
source kode voor de PIC kontroller voor de lage windlade. De lookup tabel
is terug te vinden aan het eind van deze webpagina. Merkwaardig is wel dat
het flatterzunge effekt nog het best blijkt te werken op die noten waarvoor
we omgebouwde Banggood magneten toepasten.
- 05.05.2021: Vervelende bug in de firmware voor de hoge windlade eindelijk
gevonden en gedood. Een Set NoteUit op de verkeerde
plaats maakte dat het Note-off kommando helemaal niet werkte. Alle PIC's opnieuw
geprogrammeerd.
- 06.05.2021: Inventarisatie van alle individuele klepafregelprobleempjes
op beide windladen: lekken, responstijd, openingstrajekt, stabiliteit...
- 07.05.2021: Finale afregeling van de ventielen in de lage windlade: faze
1: inventarisatie en exakte beschrijving van de problemen.
- 09.05.2021: Verder werk aan de tremulant: amplitude verkleind en overbrenging
langer gemaakt en nu vervaardigd uit polykarbonaat. De scaling van de motor
PWM zou ook hier beter logaritmisch verlopen. Het blijft mogelijk om te spelen
met de tremulant motor alleen en dus zonder kompressorwind. Uiteraard alleen
in het ritme van de tremulant...
- 13.05.2021: Kode voor het hub-board verder afgewerkt met log. scaling voor
de tremulant en board opnieuw geprogrammeerd. Evaluatie: de scaling is heel
goed nu. Begin bedrading van de LED strips.
- 14.05.2021: Lage windlade weer helemaal losgemaakt en gedemonteerd voor
definitieve afregeling van de ventielen.
- 15.05.2021: Opnieuw tests lage windlade: lektest en repetitietest passed.
Aansluiten van de LED-strips op beide windladen.
- 16.05.2021: Start poging tot stemmen en intoneren... Heel wat pijpen moeten
heel wat lager gestemd worden dan wat uit hun opschrift valt af te leiden.
Was dat orgel in een andere -hogere- diapason? Of werd het ooit een halve
toon hoger gestemd en heel wat pijpen ingekort? De pijpen voor de noten 84
tot en met 93 in het eerste register blijkens een zopas ontdekt gegraveerd
opschrift op de pijp voor noot 84 als 'Nazaard' register te zijn gebouwd.
Da's normaal een vulstem in 2 2/3 voet, met een duidelijke kwint... Het wordt
moeilijk om de oorspronkelijke dispositie van het orgeltje te achterhalen...
- 17.05.2021: Verder werk aan de pijpen. Verrassing: ook op de pijp voor noot
55 staat 'Nazaard' gegraveerd... da's nochtans een pijp met een roer... Enig
opzoekwerk leerde ons alras dat dergelijke pijpen meestal 2 2/3" waren
en dus gestemd werden als duodecime boven de grondtoon. Ze maakten dus klaarblijkelijk
deel uit van een mixtuur. Ook het gebruik van anticonische pijpen voor de
hoogste noten blijkt dan plots mooi te kloppen in het plaatje. Het kan ook
verklaren waarom de openingen in de pijpvoeten zo bijzonder klein bemeten
waren en de voortgebrachte toon dus overeenkomstig zachter was. Zouden deze
pijpen deel hebben uitgemaakt van een veel ouder projekt, helemaal niet afkomstig
van Gerard Pels? Kan dat een positief orgeltje geweest zijn? Zou dit de originele
dispositie kunnen zijn geweest:
Op die wijze kan echter noot 75 niet gespeeld worden... Wel wanneer we de
salicional pijpen als 2' register beschouwen. De tessituur loopt in dat geval
van 36 tot 91, wat op zich plausibel is: 4 1/2 oktaaf. Het zou leuk zijn om
ook al die mogelijkheden in de software te voorzien.
- 18.05.2021: We hebben de diverse mogelijkheden voor de oorspronkelijke dispositie
verder uitgezocht en in kaart gebracht:
Het
moet mogelijk zijn om al deze mogelijkheden in de software te implementeren.
Bij het stemmen blijkt nog maar eens dat bijna alle pijpen een heel eind lager
gestemd moeten worden. Soms zijn de hoeden te kort -of de pijp zelf- en moeten
we wat ' foefelen'. Hier dienden we zelfs een pijp van een andere oorsprong
in te voegen:
Werk aan
de winkel.
We moeten
onze techniek van het solderen van orgelpijpen weer eens wat bijschaven...
Het probleem is wel, dat het stemmen en intoneren van een mixtuur register
een gans andere zaak is dan het stemmen van een normaal register: immers,
niet alleen worden pijpen in mixturen vaak dubbel gebruikt, maar bovendien
worden ze ook in juiste kwinten gestemd. Vooral dat laatste staat haaks op
het gebruik van diezelfde pijpen als normaal register, waarvoor ze immers
gelijkzwevend gestemd moeten worden. Tweede stemsessie... enkele pijpen zullen
we toch opnieuw moeten bouwen. Een van de ventielen in de hoge windlade blijkt
af en toe te haperen: opent wel, maar sluit onvoldoende snel. Wellicht een
probleem met de veer.
- 19.05.2021: Nazaard-register pijpen -halfgedekt met roerpijp- voor de noten
82 en 85 opnieuw gebouwd, uitgaand van pijpwerk uit het oude orgel van de
protestantse kerk in de Brabantdam. De pijp voor noot 51 zouden we ook beter
helemaal opnieuw bouwen en de andere (zeker tot noot 59) een stapje doorschuiven.
Dat is alleszins minder arbeidsintensief dan al de betrokken pijpen wat te
moeten verlengen... Edoch, dat laatste ondernamen we uiteindelijk toch:
Een
hele dag werk was dat. De opgesoldeerde pijpen werden gemaakt uit loodvrij
pijpmetaal (Tin, antimoon, koper), overschotjes die we nog hadden bewaard
van de konstruktie van ons kwarttoonsorgel <Qt>.
- 20.05.2021: Noten 48-59 opnieuw gestemd. Verder intoneren nu... misschien
zou het goed zijn de hulp van een heuse orgelbouwer in te roepen hier. Dierik
Potvlieghe of Stefan Claessens bvb.
- 21.05.2021: Firmware voor het hub board aangepast aan de nieuwe plaatsing
van de lampjes. Repetitiesnelheden lookup gewijzigd. Zou het een goed idee
zijn alle hoeden van de roerpijpen knalrood te spuiten? Een ander idee zou
de toevoeging van een Zimbelstern kunnen zijn, vooropgesteld dat we de nodige
tintinabuli kunnen opdelven uit onze voorraden. Een geschikt motortje met
vertragingskast hebben we alvast. Ook de toevoeging van een klopgeest behoort
tot de mogelijkheden..
- 23.05.2021: Kapotte spoel voor noot 113 gedemonteerd: daar bleek een tweede
wikkeling in dunnere draad overheen gewikkeld te zijn... We namen deze wikkeling
volledig weg en soldeerden de oorspronkelijke wikkeling opniew goed aan de
oogjes en de spoel bleek toch weer te werken. Gemeten DC weerstand 152 Ohm,
wat ongeveer klopt met de weerstand gemeten voor de andere spoelen. Zou het
kunnen dat Pels die wikkeling aanbracht om kracht en trajekt van het ventiel
te verkleinen? Alleszins een vrij domme ingreep, want hij had in dat geval
kunnen volstaan met het toevoegen van een serieweerstand...
- 24.05.2021: Testkode in GMT bijgewerkt teneinde de registers soepel afzonderlijk
te kunnen testen. Salicional register (76-115) helemaal geintoneerd en gestemd.
- 25.05.2021: De bekende Bach Toccata en Fuga losgelaten op <RorO>...
dat werkt, maar het laagste oktaaf moet beslist opnieuw worden geintoneerd
want nu is het veel te zwak tegenover de overige pijpen. Zwarte viltjes gestanst
in oplopende diameters opgekleefd op de pijphouder voor de twee rijen salicional
pijpen. Die kunnen alvast niet meer rammelen. Meteen ook een nieuwe gepolsterde
bak gemaakt voor alle pijpen van dit register.
Voor de grotere pijpen konden we de bakken voor <Qt> van stal halen:
- 26.05.2021: Viltringen- kussentjes enz. gemaakt en vastgekleefd voor alle
pijpen op de hoge windlade. Alle pijpen weer zorgvuldig verwijderd en in de
voorziene bakken neergevleid. Afstandhouders voor de pijphouder gemaakt in
messing. Test van de nootrepetitie op alle ventielen. Windlade opengemaakt
en de falende kleppen geremedieerd: vooral pijp 84, salicional-register en
pijp 115 (lek). Polsters vervangen, waar nodig, veertje vervangen.
- 27.05.2021: Windlade gesloten en teruggeplaatst. Test op lekken en nootrepetitie.
Pijphouder teruggeplaatst, met messing afstandhouders. Alle konnektors opnieuw
aangesloten op de PCB's. Pijp per pijp teruggeplaatst en opnieuw zorgvuldig
gestemd. Demonstratie voor Alain Van Zeveren met Beethovens Musik fuer ein
Floetenuhr. Nieuw excentrisch wiel gemaakt voor de tremulant, nu met bewegingsstraal
12 mm. Dit werkt al heel wat beter, maar de straal mag zelfs nog kleiner zijn.
Het absolute minimum is evenwel 8 mm. De robot is nu eigenlijk klaar voor
opname in het orkest...
- 28.05.2021: Opnieuw gefotografeerd en twee demo stukjes in het atelier -met
veel achtergrondlawaai van een defekte komputer- opgenomen met een kleine
Zoom recorder. Dit is nu het (voorlopig?) statieportret:
Stefaan Claesens gekontakteerd i.v.m. verhoging van de opsnede van de pijpen
voor het laagste oktaaf. Beetje soldeerles gegeven aan Mattias en Bert. Hier
is de audioopname van een van Ludwig
van Beethovens stukken uit de bundel 'Musik fuer eine FloetenUhr'. En
hier is die van Bachs beroemde toccata en
fuga...
- 30.05.2021: Hoeden schilderen in sinjaalrood of niet? ... alvast een geschikte
pot verf ingekocht op de rommelmarkt vanmorgen. Zijpaneeltjes in perfostaal
uitgezaagd. Materiaal gerecycleerd uit een oud ADB-lichtorgel. Voor het vermijden
van het aanraken van de voorkant van de pijpjes biedt dit echter nog geen
soelaas.
- 28.06.2021: Opnames gemaakt van Alain Van Zeveren's 'Roro Tango', Karel
Miry's 'De Vlaamse Leeuw' en Walter De Buck's ;'Vliegerke'.
- 20.07.2021: Vuurdoop van de <Roro> robot met een volledig straatkoncert
op het Kompasplein bij het Melopee gebouw aan de nieuwe dokken in Gent. Transport
met een Dockx vrachtwagen. De laagste pijp dienden we voor het transport te
verwijderen vanwege de beperkte hoogte van de vrachtruimte in de kamion.
- 21.07.2021: Tweede openbaar koncert met <RorO>, nu in Ledeberg op
de Standaert site. Een korte niet erg grondige stembeurt bleek wel noodzakelijk.
- 22.07.2021: Derde openbaar koncert met <RorO>, nu in Zwijnaarde op
de kiosk in de dorpsstraat.
- 10.08.2021: Stembeurt.
- 18.08.2022: <RorO> speelt mee in mijn 'Linac Elekta' stuk.
- 08.09.2022: Een nieuwe stembeurt dient zich aan...
- 14.09.2023 - 02.10.2023: <RorO> naar de Deutsche Oper Berlin voor
de 'Zeroth Law' produktie met Gamut Inc. in de Tischlerei. Na aankomst in
Berlijn was een stembeurt wel nodig en dienden we de losgekomen perfo-staal
zijkantjes (rood) opnieuw vast te schroeven.
- 03.10.2023: <RorO> heeft de terugreis uit Berlijn goed doorstaan,
maar raakte wel grondig ontstemd. Stemmen is voor de nabije toekomst. De elektronika
en de mechanika hebben de reis in elk geval goed doorstaan.
To be done:
- further improving the experimental tremulant (mechanical tests, modulation
depth, movement noise)
- increasing the cut-up on the lowest octave pipes to give them more volume.
- tuning... a never ending story.
- Adding a Zimbelstern
Robodies Pictures with <RorO>:
to be done. Candidates?
Last update: 2025-11-05
by Godfried-Willem Raes
Technical data sheet and maintenance instructions:
- Motor specs: Ventus 6 003 80, 230/400 V, 50 Hz, 150 W, 80 mm H2O
(triangle connected for 3 x 230V operation)
- Motor Controller: Siemens Sinamics G110, 120 W
- Tremulant motor: Crouzet 24V
- PIC controllers: 8 x 18F4620 and 1 x 18F2620
- Power supply:
- Hold voltage: 12 V/ 10 A supply. Two SMPS modules.
- Velo pulse voltage: -12 V Two SMPS modules , 10A
- Tremulant voltage: 5 V - 5 A & 24 V - 2.5 A, SMPS module. This power
supply is also used to feed the lights.
- Logic 5 V supply (2 A): from separate SMPS-module on the midihub board.
- Bottom light: E10 Halogen light bulbs, 6 V 4.2 W (4).
LED-light strips:
- 2 x white: strip 1 meter, Farnell part nr. 2214009 / 9009079-2, LFBML-SW860-24V-6S167-20
- 14.4 W (600mA bij 24V)
- 1 x red: strip 1 meter, Farnell part nr: 2214010 / 9009080-2, LFBML SC625-24v-20
- 14.4 W (600mA @ 24V)
- not used: [blue: strip 1 meter, part nr.2214013 / 9009083-2, LFBML-SC470-24V-6S167-20
- 14.4 W (600mA @ 24V)]
- LED-module, 12V red, OMC
- not used: LED-module, 12V white (Waterproof) part nr. 1693867, OMC www.omc-uk.com
Wiring for the Laukhuff blower:

The valves inside the high windchest were mounted by Gerard Pels. They have
a DC resistance of 145 Ohm and work on a 12 V voltage (determined by us, as
there are no specs. on the components). We have no idea as to the original producer
of these valves.
The valves inside the low windchest, replaced after the failure with using
the 1/2" Banggood valves, are now ten August Laukhuff types flat 30 mm
pallet valves. These have a cold resistance of 79 Ohm and are designed to operate
on 12 to 14 V. Two valves are made by us, using the Banggood solenoids and anchors
as described in our construction diary. These two valves are mounted to operate
the notes 36 and 47.
Pressure sensor inside the bellows: MPXV7002, pressure range -2000 to +2000
Pa (= -200 to +200 mm H2O). Will be mounted only if required
for the final version of the instrument.
Powersupply modules: 4 pieces Meanwell IRM-60-12. Input: 100-240Vac, 1.8A ;
output 12V 5A. Made in Taiwan. Manual: http://www.meanwell.com/manual.html Here
is the relevant datasheet.
Programming information and settings for the Siemens Sinamics G110 motor
controller:
This is the same controller type as used in the old version of the <So>
robot, the old version of <autosax> as well as in the <Bomi> robot
from 2010. These robots however have a mini-ventola 132V/230V motor, whereas
this robot uses a 230/400V motor. The G110 controller is in fact not powerfull
enough for this motor. We should go for a 250W model instead of the 120W used
now. However, so far it works...
| Parameter nr. |
setting |
comment |
| P0003 - User Access level |
3 |
- 1= standard (motor params.)
- 2 = extended
- 3 = expert
For normal operation must be reset to 0. |
| P0004 - access control filter params |
0 |
allow access to all parameters of P0003 = 3 |
| P0005 - display parameter |
21 |
display motor frequency |
| P0010 - commisioning params |
0 |
must be set to 1 to change motor params.
For access to P4 params and normal operation, must be set to 0
|
| P0100 - Europe/ US |
2 |
0 = default value (Europe, 50 Hz)
2 = USA, 60 Hz, metric units (our setting here)
|
| P0210 - voltage |
230 V |
mains voltage |
| P0304 - nominal motor voltage |
230 V |
motor specs. (motor should be triangle connected, as its a
230/400V motor) |
| P0305 - motor current |
0.8 A |
motor specs. |
| P0307 - motor power |
0.15 kW |
motor specs. (Ror motor) |
| P0310 - nominal motor frequency |
75Hz |
motor specs. say 50Hz |
| P0311 - nominal motor rpm |
3600 |
motor specs. say 2800 rpm |
| P0700 - ctrl. via control panel or digital I/O |
2 |
use digital inputs for ctrl. |
| P1000 - select frequency setpoint |
2 |
set analog setpoint (1= operator panel f-ctrl) |
| P1080 - min.. motor frequency |
10 Hz |
12 Hz with 60Hz setting. |
| P1082 - max. motor frequency |
75 Hz |
|
| P1120 - ramp up-time |
2" |
|
| P1121 - ramp down time |
5" |
|
| P1300 - V/f characteristic |
2 |
quadratic V/f control |
| P2000 - max.frequency setpoint |
75 Hz |
|
| P3900 - end quick commisioning |
1 |
resets P0010 |
Signals connection & pin numbering on the motor controller:
- 1 nc
- 2 nc
- 3 on/off (grey wire)
- 4 cw/ccw (nc)
- 5 fault acknowledge - can be used for manual reset after fault condition.
- 6 +24 V output (nc)
- 7 GND (black wire)
- 8 +10 V output (nc)
- 9 analog speed voltage control input (0- 10 V) (red/white wire)
- 10 GND (black wire)
With the V1.0 firmware in the 18F2620 PIC controller, we get following correspondence
between the controller #7 value and the motor frequency:
[measurements 25.04.2021, 10u00:]
| Controller 7 value |
Analog control voltage |
Motor frequency |
wind pressure
10 mm H20 = 1 mbar
|
remarks |
| 0 |
0 |
12 Hz |
0 |
Motor OFF - 12 Hz is the minimum speed programmed on the controller. |
| 10 |
2.2 V |
16 Hz |
10 mm H20 = 1 mBar |
some pipes can make whistle sounds |
| 14 |
3.09 V |
23 Hz |
20 mm H20 = 2 mBar |
|
| 19 |
4.05 V |
30 Hz |
30 mm H20 = 3 mBar |
|
| 22 |
4.51 V |
34 Hz |
40 mm H20 = 4 mBar |
|
| 26 |
5.03 V |
38 Hz |
50 mm H20 = 5 mBar |
|
| 30 |
5.45 V |
41 Hz |
60 mm H20 = 6 mBar |
|
| 36 |
5.97 V |
45 Hz |
70 mm H20 = 7 mBar |
|
| 42 |
6.39 V |
48 Hz |
79 mm H20 = 7.9 mBar |
|
| 43 |
6.50 V |
50 Hz |
80 mm H20 = 8 mBar |
This is the nominal pressure and frequency for the motor |
| 50 |
6.80 V |
52 Hz |
90 mm H20 = 9 mBar |
|
| 57 |
7.10 V |
54 Hz |
100 mm H20 = 10 mBar |
|
| 70 |
7.52 V |
57 Hz |
110 mm H20 = 11 mBar |
|
| 85 |
7.8 V |
60 Hz |
120 mm H20 = 12 mBar |
|
| 110 |
8.25 V |
63 Hz |
130 mm H20 = 13 mBar |
|
| 126 |
8.43 V |
64 Hz |
140 mm H20 = 14 mBar |
all pipes will sound too high and out of tune. |
| 127 |
8.50 V |
65 Hz |
140 mm H20 = 14 mBar |
|
The windpressure was measured, 25.04.2021, on an open valve on the windchest.
The resolution of the pressure measurement is 5 mm H20
or 0.5 mBar.
Pipe tuning and intonation was performed with a controller 7 value equal to
43. Intonation and tuning finished 27.05.2021.
Lookup table for the correspondence between midi values for key pressure
and the periodicities of the note repeats:
midi byte = 1 (10000) freq= 2.00000005052425
midi byte = 2 (9678) freq= 2.06654272631148
midi byte = 3 (9520) freq= 2.10073005674518
midi byte = 4 (9366) freq= 2.1353833552469
midi byte = 5 (9214) freq= 2.17060999622775
midi byte = 6 (9064) freq= 2.20640967568454
midi byte = 7 (8917) freq= 2.24290686388275
midi byte = 8 (8772) freq= 2.27985186722628
midi byte = 9 (8630) freq= 2.31749716167352
midi byte = 10 (8489) freq= 2.35585140529389
midi byte = 11 (8352) freq= 2.39463607581926
midi byte = 12 (8216) freq= 2.43427464766827
midi byte = 13 (8082) freq= 2.47448196786174
midi byte = 14 (7951) freq= 2.51524875875527
midi byte = 15 (7822) freq= 2.55672745353052
midi byte = 16 (7695) freq= 2.59892151325353
midi byte = 17 (7570) freq= 2.64183349914041
midi byte = 18 (7447) freq= 2.68546498895502
midi byte = 19 (7326) freq= 2.72981648880673
midi byte = 20 (7207) freq= 2.7748873403042
midi byte = 21 (7090) freq= 2.82067562305091
midi byte = 22 (6975) freq= 2.867383584981
midi byte = 23 (6862) freq= 2.91460223043464
midi byte = 24 (6750) freq= 2.96274357532664
midi byte = 25 (6641) freq= 3.01159471544082
midi byte = 26 (6533) freq= 3.06138076002488
midi byte = 27 (6427) freq= 3.11187186949471
midi byte = 28 (6322) freq= 3.16330573432068
midi byte = 29 (6220) freq= 3.21543416482998
midi byte = 30 (6119) freq= 3.26850800870118
midi byte = 31 (6019) freq= 3.32253517821123
midi byte = 32 (5921) freq= 3.3775226725057
midi byte = 33 (5825) freq= 3.433181787871
midi byte = 34 (5731) freq= 3.48979244551431
midi byte = 35 (5638) freq= 3.54735730848572
midi byte = 36 (5546) freq= 3.60587767154828
midi byte = 37 (5456) freq= 3.66535334101393
midi byte = 38 (5367) freq= 3.72612957712948
midi byte = 39 (5280) freq= 3.78752021688145
midi byte = 40 (5194) freq= 3.85022629805419
midi byte = 41 (5110) freq= 3.91351149696556
midi byte = 42 (5027) freq= 3.978120438636
midi byte = 43 (4945) freq= 4.04408057936356
midi byte = 44 (4865) freq= 4.11057455662162
midi byte = 45 (4786) freq= 4.17841857416536
midi byte = 46 (4708) freq= 4.24763735908304
midi byte = 47 (4632) freq= 4.31778940095909
midi byte = 48 (4557) freq= 4.38885242599133
midi byte = 49 (4483) freq= 4.46129835048907
midi byte = 50 (4410) freq= 4.53514750685771
midi byte = 51 (4338) freq= 4.60988832666648
midi byte = 52 (4268) freq= 4.68603573224988
midi byte = 53 (4198) freq= 4.7636061701185
midi byte = 54 (4130) freq= 4.84202893239136
midi byte = 55 (4063) freq= 4.92186551131845
midi byte = 56 (3997) freq= 5.00312708073609
midi byte = 57 (3932) freq= 5.08582339612015
midi byte = 58 (3868) freq= 5.16996264837599
midi byte = 59 (3806) freq= 5.25486087893918
midi byte = 60 (3744) freq= 5.34188047682759
midi byte = 61 (3683) freq= 5.42961870645921
midi byte = 62 (3623) freq= 5.51952546025735
midi byte = 63 (3564) freq= 5.61088525887011
midi byte = 64 (3506) freq= 5.70369328539641
midi byte = 65 (3450) freq= 5.79710159572247
midi byte = 66 (3393) freq= 5.89362030506631
midi byte = 67 (3338) freq= 5.99071454402951
midi byte = 68 (3284) freq= 6.08920703463008
midi byte = 69 (3231) freq= 6.19003420156066
midi byte = 70 (3178) freq= 6.29227638988281
midi byte = 71 (3127) freq= 6.39590678133755
midi byte = 72 (3076) freq= 6.50195074942864
midi byte = 73 (3026) freq= 6.6093854941317
midi byte = 74 (2977) freq= 6.71817282675261
midi byte = 75 (2928) freq= 6.82943503679102
midi byte = 76 (2881) freq= 6.94203419133721
midi byte = 77 (2834) freq= 7.05591832959693
midi byte = 78 (2788) freq= 7.17231504581047
midi byte = 79 (2743) freq= 7.2912870963334
midi byte = 80 (2698) freq= 7.41152510848342
midi byte = 81 (2654) freq= 7.53437577895743
midi byte = 82 (2611) freq= 7.65843404374594
midi byte = 83 (2569) freq= 7.78513059760316
midi byte = 84 (2527) freq= 7.91295766775173
midi byte = 85 (2486) freq= 8.04343474974563
midi byte = 86 (2446) freq= 8.17661508799776
midi byte = 87 (2406) freq= 8.3108250593154
midi byte = 88 (2367) freq= 8.44951436638889
midi byte = 89 (2329) freq= 8.58737677339738
midi byte = 90 (2291) freq= 8.72981252956897
midi byte = 91 (2253) freq= 8.8750834281085
midi byte = 92 (2217) freq= 9.02120004747068
midi byte = 93 (2181) freq= 9.1701056878691
midi byte = 94 (2145) freq= 9.32183663726055
midi byte = 95 (2111) freq= 9.47418309106703
midi byte = 96 (2076) freq= 9.63159186382977
midi byte = 97 (2043) freq= 9.78952545533162
midi byte = 98 (2009) freq= 9.95272480977482
midi byte = 99 (1977) freq= 10.1163381412456
midi byte = 100 (1945) freq= 10.2827766093792
midi byte = 101 (1913) freq= 10.452051479092
midi byte = 102 (1882) freq= 10.6241702551089
midi byte = 103 (1851) freq= 10.8020526628369
midi byte = 104 (1821) freq= 10.9799618475117
midi byte = 105 (1792) freq= 11.1607145676576
midi byte = 106 (1763) freq= 11.3442997760876
midi byte = 107 (1734) freq= 11.5307007813448
midi byte = 108 (1706) freq= 11.7233297217131
midi byte = 109 (1678) freq= 11.9154009563554
midi byte = 110 (1651) freq= 12.113870687609
midi byte = 111 (1624) freq= 12.3114807665389
midi byte = 112 (1598) freq= 12.5156448718664
midi byte = 113 (1572) freq= 12.7226466318336
midi byte = 114 (1546) freq= 12.9324283900695
midi byte = 115 (1521) freq= 13.1449231056474
midi byte = 116 (1496) freq= 13.364517544432
midi byte = 117 (1472) freq= 13.5823432972784
midi byte = 118 (1448) freq= 13.8073873008233
midi byte = 119 (1425) freq= 14.0350880738544
midi byte = 120 (1402) freq= 14.2653355957507
midi byte = 121 (1379) freq= 14.503263600611
midi byte = 122 (1356) freq= 14.7438263953133
midi byte = 123 (1334) freq= 14.9868868529356
midi byte = 124 (1313) freq= 15.2322928448153
midi byte = 125 (1291) freq= 15.4858695356117
midi byte = 126 (1270) freq= 15.7418343213243
midi byte = 127 (1250) freq= 16.000000404194
Literature and documentation:
Meidinger catalogue
August Laukhuff catalogue [note: August Laukhuff Gmbh went out of business
as of 2022]
Oosterhof A.P. en Bouman A., "Orgelbouwkunde", Leiden, 1985
RAES, Godfried-Willem "
Logos @ 50, het kloppend hart van de avant-gardemuziek in Vlaanderen",
ed. Stichting Kunstboek, Oostkamp, 2018